Sous-compromis
Exclusif
Découvrir le bien

Marseille (13012) APPARTEMENT 4/5 PIECES - 81m² + Cave – BOIS LEMAITRE - MARSEILLE 13012

Réf : ASAPPART12-02 164 000 €
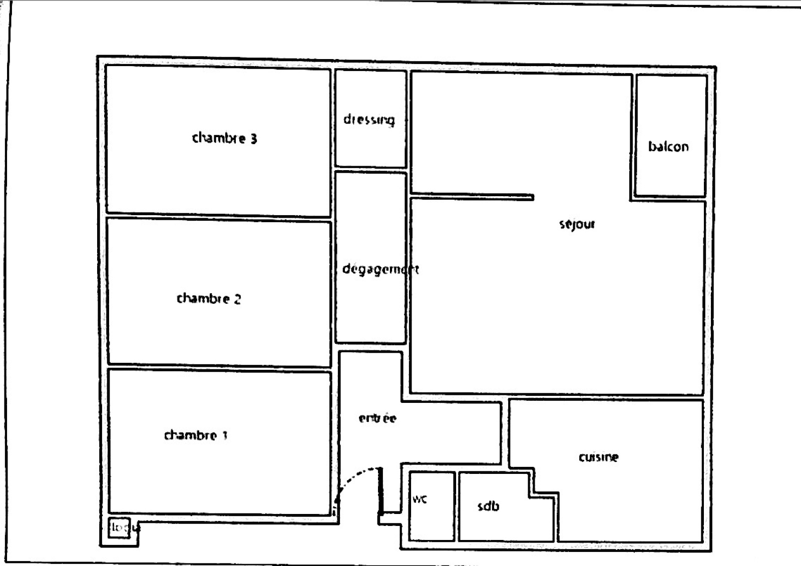
Au cœur du quartier recherché de Bois Lemaître, AC’COM IMMOBILIER vous propose en EXCLUSIVITE un grand appartement, à rénover, de 81m² (loi Carrez), situé dans un environnement calme et verdoyant au 2ème étage d’un immeuble de 4 niveaux sans ascenseur. Ce bien se compose d’un double séjour lumineux de 28m², d’une cuisine indépendante, de trois chambres exposées ouest, d’une salle de bain, d’un WC séparé ainsi que de nombreux rangements. Il se complète par une cave et le stationnement demeure libre dans la résidence. L'immeuble bénéficie d'un accès sécurisé par badge et interphone. À deux pas des commerces, des écoles et des transports en commun, cet appartement bénéficie d’un cadre de vie idéal pour une famille ou un projet d’investissement. Il pourrait facilement devenir le 5 pièces d’origine en réduisant la partie séjour pour la création d’une 4ème chambre. Ce bien au fort potentiel n’attend plus que votre touche personnelle : imaginez, rénovez, transformez-le à votre image. Venez le découvrir sans tarder lors d'une visite ! Une opportunité rare dans un secteur prisé ! Contactez-nous. La copropriété compte 857 lots - Pas de procédure en cours. Charges annuelles de copropriété : 1816€ / Taxe Foncière : 1154€ Coût annuel estimé des dépenses d’énergie du logement pour une utilisation standard basé sur 5 usages (chauffage, eau chaude sanitaire, climatisation, auxiliaires) indexés sur les années 2021, 2022, 2023 : entre 1480 et 2070€. Honoraires à la charge du vendeur / Mandat N°35 Les informations sur les risques auxquels ce bien est exposé sont disponibles sur le site Géorisques https://www.georisques.gouv.fr
TRAD_SIROCCO_Caracteristique Valeurs
Code postal 13012
Surface habitable (m²) 81,15 m²
Surface loi Carrez (m²) 81,15 m²
Nombre de chambre(s) 3
Nombre de pièces 5
Etage 2
Ascenseur NON
Vue Vue dégagée
TRAD_SIROCCO_Caracteristique Valeurs
Nb de salle de bains 1
Cuisine Séparée
Mode de chauffage Gaz
Type de chauffage TRAD_TYPE_CHAUFF_CHAUDIERE
Format de chauffage Individuel
Interphone OUI
Balcon OUI
Terrasse NON
Cave OUI
Surface cave (m²) 5
Exposition Est
Année de construction 1970
TRAD_SIROCCO_Caracteristique Valeurs
Copropriété OUI
Lot n° 7315
nombre de lots 857
Quote Part annuelle des charges 1 816 €
plan de sauvegarde NON
statut du syndic pas de procédure en cours
TRAD_SIROCCO_Caracteristique Valeurs
Prix de vente 164 000 €
Les honoraires d'agence seront intégralement à la charge du vendeur  
Taxe foncière annuelle 1 154 €
DPE GES
DPE en cours
  • Commerces et santé
  • Loisirs
  • Ecoles
  • Transports
  • Pratique

Nos outils

Imprimer
Intéressé(e) par Ce bien ?

* Champ obligatoire

contacter l'agence

Les informations recueillies sur ce formulaire sont enregistrées dans un fichier informatisé par La Boite Immo agissant comme Sous-traitant du traitement pour la gestion de la clientèle/prospects de l'Agence / du Réseau qui reste Responsable du Traitement de vos Données personnelles. La base légale du traitement repose sur l'intérêt légitime de l'Agence / du Réseau. Elles sont conservées jusqu'à demande de suppression et sont destinées à l'Agence / au Réseau. Conformément à la loi « informatique et libertés », vous disposez des droits d’accès, de rectification, d’effacement, d’opposition, de limitation et de portabilité de vos données. Vous pouvez retirer votre consentement à tout moment en contactant directement l’Agence / Le Réseau. Consultez le site https://cnil.fr/fr pour plus d’informations sur vos droits. Si vous estimez, après avoir contacté l'Agence / le Réseau, que vos droits « Informatique et Libertés » ne sont pas respectés, vous pouvez adresser une réclamation à la CNIL. Nous vous informons de l’existence de la liste d'opposition au démarchage téléphonique « Bloctel », sur laquelle vous pouvez vous inscrire ici : https://www.bloctel.gouv.fr Dans le cadre de la protection des Données personnelles, nous vous invitons à ne pas inscrire de Données sensibles dans le champ de saisie libre.
Ce site est protégé par reCAPTCHA, les Politiques de Confidentialité et les Conditions d'Utilisation de Google s'appliquent.

Nous suivre sur