Pierrevert (04860) A PIERREVERT (04 - TERRAIN A BATIR 607M²

Réf : TAB06PVRT

Sur la Commune de Pierrevert, au calme absolu dans un secteur pavillonnaire, à quelques pas du village, devenez propriétaire de votre terrain à bâtir au sein d'un lotissement de seulement 11 parcelles.

Terrain viabilisé, piscinable et libre choix constructeur.

Livraison immédiate, après l'obtention de votre financement et de votre permis de construire.


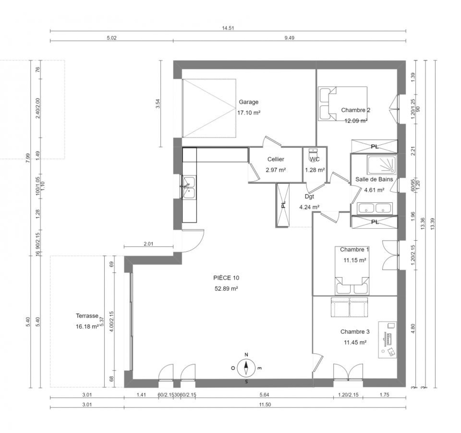
Plan de vente du terrain accompagné d'une esquisse d'une maison plain-pied de 100m² + garage de 17m² réalisée par l'un des mes partenaires Constructeur et qui a été étudiée en fonction de la réglementation du lotissement ! Possibilité, également, de réaliser un étage équivalent à 40% de la surface de plancher du RDC.

TRAD_SIROCCO_Caracteristique Valeurs
Code postal 04860
surface terrain 607 m²
Terrain constructible OUI
TRAD_SIROCCO_Caracteristique Valeurs
Terrain piscinable OUI
Terrain arboré NON
Terrain Viabilisé OUI
Terrain Cloturé NON
Terrain divisible NON
Tout à l'égout OUI
Accès OUI
Raccordement eau OUI
Raccordement gaz NON
Raccordement électricité OUI
Raccordement téléphone OUI
TRAD_SIROCCO_Caracteristique Valeurs
Les honoraires d'agence seront intégralement à la charge du vendeur  
Dépôt de garantie TTC 1 500 €
  • Commerces et santé
  • Loisirs
  • Ecoles
  • Transports
  • Pratique

Nos outils

Imprimer
Nous suivre sur